Projet Type Programme Milieu Lieu Client Année
La collectionneuse Restauration Appartement Patrimoine XXe Paris 16e Privé 2016
Croisée Rénovation Appartement Patrimoine XXe Paris 16e Privé 2016
Banc public Installation Retail & hospitality Grands magasins Paris 3e Tom Greyhound 2016
Trois objets Installation Retail & hospitality Grands magasins Paris 9e System 2017
Audi de mixage I Rénovation Auditorium, Studio de post-production Cinéma, Son Paris 10e Third 2017
Audi de mixage III Rénovation Auditorium, studios de post-production cinéma Cinéma Paris 3e Saya 2019
Audi de mixage II Rénovation Auditorium, studios de post-production Cinéma Genève Masé 2018
Hortus Enseignement - Académique ENSA Versailles - 2017
Les cours urbaines Enseignement - Académique ENSA Paris-Belleville - 2014
Maison Bernard Restauration Maison Patrimoine XXe, M.H. Maisons-Laffitte (78) Privé 2022
Villa Riberolle Réhabilitation Auditorium, Studios de post-production, Bureaux Patrimoine Industriel XIXe, Cinéma Paris 20e PolySon Post Production 2024
Studiolo Rénovation Appartement Urbain Paris 9e Le Crime 2021
Maison sur jardin Rénovation, Extension Maison Patrimoine XXe Cachan (94) Privé 2021
Ferme franc-comtoise Réhabilitation Maison Patrimoine agricole Mesnois (39) Privé 2021
Longère Réhabilitation 5 logements sociaux Patrimoine agricole Grand-Auverné (44) Une Famille Un Toit 44 2023
Grange Réhabilitation Maison Patrimoine agricole Belforêt-en-Perche (61) Privé 2023
Micro/Macro Enseignement - Académique Faculté d'architecture La Cambre-Horta, Bruxelles - 2022
Château de Bussy-Rabutin Diagnostic patrimonial Espaces d'accueil des visiteurs Patrimoine XVIIe, M.H. Bussy-le-Grand (21) Centre des Monuments Nationaux, ENSA Paris-Belleville 2021
Ecole Paul Bert Réhabilitation patrimoniale, Rénovation thermique Ecole élémentaire et I.M.E. Patrimoine XXe, patrimoine scolaire Le Havre (76) Ville du Havre 2024
Appartement 24 N.C. Rénovation Appartement Patrimoine XXe, M.H. (façades et parties communes) Paris 16e Privé 2024
Objets Trouvés Exposition - Musée Cité de l'Architecture et du Patrimoine, Paris
Barrault-Pressacco 2023
Centre de tri Rodier Réhabilitation Logements collectifs,  Coworking, ERP, Bureau de poste pour professionnel, Logistique urbaine Patrimoine XXe Paris 9e La Poste Immobilier 2025
Ancien hôpital La Rochefoucauld Réhabilitation, Construction Logements collectifs, Ateliers d’artiste, Ateliers de l’Ecole Spéciale d’Architecture, Galerie d’art, GHU, Café, Co-working Patrimoine XVIIIe, M.H Paris 14e Linkcity 2025
Monge Réhabilitation 12 logements sociaux Patrimoine haussmannien Paris 5e Paris Habitat 2025
Ancienne poste Réhabilitation 7 logements sociaux Patrimoine agricole, ancienne poste Treffieux (44) Une Famille Un Toit 44 2024
Philolaos Diagnostic patrimonial, Restauration Maison, Atelier, Résidence d’artiste Patrimoine XXe Saint-Rémy-lès-Chevreuse (78) Privé 2023
Ecole La Rose Réhabilitation, Extension Groupe scolaire Patrimoine XXe,  Patrimoine scolaire Marseille (13) SPLA-IN des Ecoles de Marseille 2025
Georges Perec, Human Algorithm Enseignement - Académique EAVT Paris-Est - 2024
Marbeau Restauration Appartement Patrimoine XXe, Art déco Paris 16e Privé 2025
Villa Arpin Diagnostic Patrimonial Maison Patrimoine XXe, Littoral Palavas-les-Flots (34) Privé 2023
Appartement 24 N.C. II Rénovation Appartement Patrimoine XXe, M.H. (façades et parties communes) Paris 16e Privé 2025
Ecole de la Marine Réhabilitation Logements collectifs, Logements étudiants, Bureaux, Activités Patrimoine XXe, Patrimoine scolaire Nantes (44) Loire Océan Métropole Aménagement, Nantes Métropole 2025
Maison Le Manchec Diagnostic patrimonial Maison Patrimoine XXe Chennevières-sur-Marne (94) Architecture de Collection 2026
Jussieu Mémoire de recherche - Académique Paris 19e ENSA Paris-La Villette / HESAM Université 2022
Audi de mixage IV Rénovation Auditorium, Studio de post-production Cinema Genève Masé 2023
Audi de mixage V Rénovation Auditorium, Studio de post-production Cinema Paris 15e Privé 2022
Hôtel Rénovation, Construction Hôtel, Spa Site classé Loir-et-Cher (41) Privé 2023
Appartement de faubourg Rénovation Appartement Faubourg Paris 11e Privé 2018
Paulin Diagnostic patrimonial, Restauration Maison Patrimoine XXe, M.H. Saint-Roman-de-Codières (30) Privé 2023
Porte-voix Rénovation Amphithéâtre Culture Versailles, (78) ENSA Versailles 2025
Une maison en forêt Restauration, Extension Maison Patrimoine XIXe Rueil-Malmaison, (92) Privé 2021
Vue sur mer Construction Maison Littoral Saint-Cast Le Guildo, (22) Privé 2023
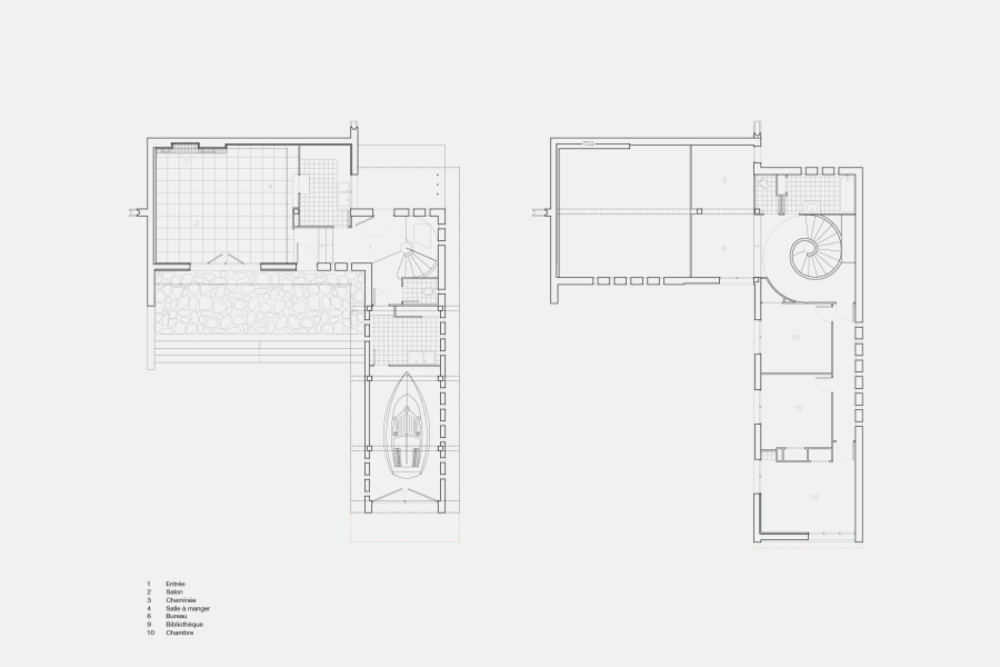
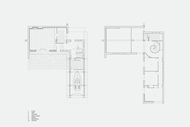
Villa Arpin
Fermer
Villa Arpin
(texte)
(images)
1–10
RREEL - Villa Arpin
RREEL - Villa Arpin

Photographie extérieure, 1962

Type
Diagnostic Patrimonial
Programme
Maison
Milieu
Patrimoine XXe, Littoral
Lieu
Palavas-les-Flots (34)
Statut
livré
Client
Privé
Année
2023
Équipe
RREEL
Superficie
190 m2
Héritage

Armand Pellier, 1960

Description

Cette maison de bord de mer a été construite en 1960 par l’architecte nimois Armand Pellier. Ses réalisations architecturales se repèrent aisément, grâce à deux constantes : la modernité de leurs lignes et l’utilisation récurrente d’un
matériau, la pierre dorée qui servit à construire le célèbre Pont du Gard. Sculpteur, compagnon tailleur de pierre, artiste et architecte, cet homme d’exception a façonné sa vie à la dimension de ses rêves ; mieux, il a su entraîner les maîtres d’ouvrage dans sa propre quête de beauté et d’harmonie.

(voir plus)
RREEL - Villa Arpin

Photographie du site, 1962

RREEL - Villa Arpin
RREEL - Villa Arpin

Carte postale du site, 1962

RREEL - Villa Arpin

Dessin Armand Pellier, 1959

RREEL - Villa Arpin
RREEL - Villa Arpin
RREEL - Villa Arpin

Dessin Armand Pellier, 1959

arrow-left
arrow-right
close
RREEL - Villa Arpin
RREEL - Villa Arpin
RREEL - Villa Arpin
RREEL - Villa Arpin
RREEL - Villa Arpin
RREEL - Villa Arpin
RREEL - Villa Arpin
RREEL - Villa Arpin
RREEL - Villa Arpin
Fermer
Chargement…