Projet Type Programme Milieu Lieu Client Année
La collectionneuse Restauration Appartement Patrimoine XXe Paris 16e Privé 2016
Croisée Rénovation Appartement Patrimoine XXe Paris 16e Privé 2016
Banc public Installation Retail & hospitality Grands magasins Paris 3e Tom Greyhound 2016
Trois objets Installation Retail & hospitality Grands magasins Paris 9e System 2017
Audi de mixage I Rénovation Auditorium, Studio de post-production Cinéma, Son Paris 10e Third 2017
Audi de mixage III Rénovation Auditorium, studios de post-production cinéma Cinéma Paris 3e Saya 2019
Audi de mixage II Rénovation Auditorium, studios de post-production Cinéma Genève Masé 2018
Hortus Enseignement - Académique ENSA Versailles - 2017
Les cours urbaines Enseignement - Académique ENSA Paris-Belleville - 2014
Maison Bernard Restauration Maison Patrimoine XXe, M.H. Maisons-Laffitte (78) Privé 2022
Villa Riberolle Réhabilitation Auditorium, Studios de post-production, Bureaux Patrimoine Industriel XIXe, Cinéma Paris 20e PolySon Post Production 2024
Studiolo Rénovation Appartement Urbain Paris 9e Le Crime 2021
Maison sur jardin Rénovation, Extension Maison Patrimoine XXe Cachan (94) Privé 2021
Ferme franc-comtoise Réhabilitation Maison Patrimoine agricole Mesnois (39) Privé 2021
Longère Réhabilitation 5 logements sociaux Patrimoine agricole Grand-Auverné (44) Une Famille Un Toit 44 2023
Grange Réhabilitation Maison Patrimoine agricole Belforêt-en-Perche (61) Privé 2023
Micro/Macro Enseignement - Académique Faculté d'architecture La Cambre-Horta, Bruxelles - 2022
Château de Bussy-Rabutin Diagnostic patrimonial Espaces d'accueil des visiteurs Patrimoine XVIIe, M.H. Bussy-le-Grand (21) Centre des Monuments Nationaux, ENSA Paris-Belleville 2021
Ecole Paul Bert Réhabilitation patrimoniale, Rénovation thermique Ecole élémentaire et I.M.E. Patrimoine XXe, patrimoine scolaire Le Havre (76) Ville du Havre 2024
Appartement 24 N.C. Rénovation Appartement Patrimoine XXe, M.H. (façades et parties communes) Paris 16e Privé 2024
Objets Trouvés Exposition - Musée Cité de l'Architecture et du Patrimoine, Paris
Barrault-Pressacco 2023
Centre de tri Rodier Réhabilitation Logements collectifs,  Coworking, ERP, Bureau de poste pour professionnel, Logistique urbaine Patrimoine XXe Paris 9e La Poste Immobilier 2025
Ancien hôpital La Rochefoucauld Réhabilitation, Construction Logements collectifs, Ateliers d’artiste, Ateliers de l’Ecole Spéciale d’Architecture, Galerie d’art, GHU, Café, Co-working Patrimoine XVIIIe, M.H Paris 14e Linkcity 2025
Monge Réhabilitation 12 logements sociaux Patrimoine haussmannien Paris 5e Paris Habitat 2025
Ancienne poste Réhabilitation 7 logements sociaux Patrimoine agricole, ancienne poste Treffieux (44) Une Famille Un Toit 44 2024
Philolaos Diagnostic patrimonial, Restauration Maison, Atelier, Résidence d’artiste Patrimoine XXe Saint-Rémy-lès-Chevreuse (78) Privé 2023
Ecole La Rose Réhabilitation, Extension Groupe scolaire Patrimoine XXe,  Patrimoine scolaire Marseille (13) SPLA-IN des Ecoles de Marseille 2025
Georges Perec, Human Algorithm Enseignement - Académique EAVT Paris-Est - 2024
Marbeau Restauration Appartement Patrimoine XXe, Art déco Paris 16e Privé 2025
Villa Arpin Diagnostic Patrimonial Maison Patrimoine XXe, Littoral Palavas-les-Flots (34) Privé 2023
Appartement 24 N.C. II Rénovation Appartement Patrimoine XXe, M.H. (façades et parties communes) Paris 16e Privé 2025
Ecole de la Marine Réhabilitation Logements collectifs, Logements étudiants, Bureaux, Activités Patrimoine XXe, Patrimoine scolaire Nantes (44) Loire Océan Métropole Aménagement, Nantes Métropole 2025
Maison Le Manchec Diagnostic patrimonial Maison Patrimoine XXe Chennevières-sur-Marne (94) Architecture de Collection 2026
Jussieu Mémoire de recherche - Académique Paris 19e ENSA Paris-La Villette / HESAM Université 2022
Audi de mixage IV Rénovation Auditorium, Studio de post-production Cinema Genève Masé 2023
Audi de mixage V Rénovation Auditorium, Studio de post-production Cinema Paris 15e Privé 2022
Hôtel Rénovation, Construction Hôtel, Spa Site classé Loir-et-Cher (41) Privé 2023
Appartement de faubourg Rénovation Appartement Faubourg Paris 11e Privé 2018
Paulin Diagnostic patrimonial, Restauration Maison Patrimoine XXe, M.H. Saint-Roman-de-Codières (30) Privé 2023
Porte-voix Rénovation Amphithéâtre Culture Versailles, (78) ENSA Versailles 2025
Une maison en forêt Restauration, Extension Maison Patrimoine XIXe Rueil-Malmaison, (92) Privé 2021
Vue sur mer Construction Maison Littoral Saint-Cast Le Guildo, (22) Privé 2023
Philolaos
Fermer
Philolaos
(texte)
(images)
1–16
RREEL - Philolaos

Maison, 1961 et 1971-78, Fonds Vera Cardot - Centre Pompidou

RREEL - Philolaos
Type
Diagnostic patrimonial, Restauration
Programme
Maison, Atelier, Résidence d’artiste
Milieu
Patrimoine XXe
Lieu
Saint-Rémy-lès-Chevreuse (78)
Statut
Etudes en cours
Client
Privé
Année
2023
Équipe
RREEL
Superficie
430 m²
Héritage

Philolaos Tloupas, 1968 et 1972

Description

Artiste majeur du XXᵉ siècle, Philolaos Tloupas (1923-2010), surnommé « le sculpteur des architectes », a construit son atelier en 1968 puis sa maison en 1972 à Saint-Rémy-lès-Chevreuse. Le terrain choisi pour les constructions bénéficie d’une position privilégiée surplombant la vallée, voisin de la maison d’André Wogenscky et Marta Pan. Depuis leurs constructions, les bâtiments ont été soigneusement entretenus mais n’ont jamais fait l’objet de travaux de rénovation. Le projet vise à restaurer ces lieux emblématiques et à transformer l’atelier en espace ouvert au public, conservant les sculptures dans leur cadre d’origine. Véritables prolongements de son œuvre, ces bâtiments seront étudiés et valorisés pour retrouver leur authenticité. En parallèle de notre travail d’enquête historique et de restauration, nous accompagnons les propriétaires pour inscrire la maison au titre des Monuments Historiques.

(voir plus)
RREEL - Philolaos
RREEL - Philolaos

Atelier, 1961 et 1971-78, Fonds Vera Cardot - Centre Pompidou

RREEL - Philolaos

Axonométrie de l'atelier

RREEL - Philolaos

Atelier, 1961 et 1971-78, Fonds Vera Cardot - Centre Pompidou

RREEL - Philolaos

Atelier, 1961 et 1971-78, Fonds Vera Cardot - Centre Pompidou

RREEL - Philolaos
RREEL - Philolaos

Plan de l'atelier- relevé de l'existant

RREEL - Philolaos

Atelier, 1961 et 1971-78, Fonds Vera Cardot - Centre Pompidou

RREEL - Philolaos

Plan de la maison dessiné par Philolaos Tloupas

RREEL - Philolaos

Maison, 1961 et 1971-78, Fonds Vera Cardot - Centre Pompidou

RREEL - Philolaos

Axonométrie de la maison

RREEL - Philolaos

Photographie maison 1965

RREEL - Philolaos

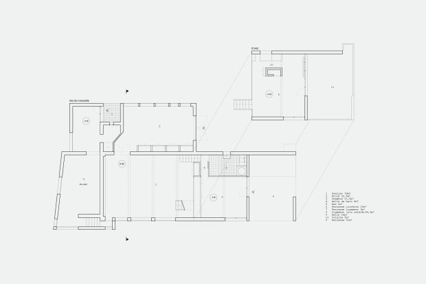
Plan de la maison- relevé de l'existant

arrow-left
arrow-right
close
RREEL - Philolaos
RREEL - Philolaos
RREEL - Philolaos
RREEL - Philolaos
RREEL - Philolaos
RREEL - Philolaos
RREEL - Philolaos
RREEL - Philolaos
RREEL - Philolaos
RREEL - Philolaos
RREEL - Philolaos
RREEL - Philolaos
RREEL - Philolaos
RREEL - Philolaos
RREEL - Philolaos
Fermer
Chargement…